
קו לנגר – תכנון רהיטים מדויק ב-CABINET VISION
תכנון רהיטים ושרטוטים מקצועיים, כולל הכנת קבצים לייצור
בנוי במיוחד לנגריות עם CNC בדיוק לפי שיטת העבודה שלכם
עבודה מרחוק
תכנון מלא מרחוק דרך חיבור למחשב הנגריה
אני מבצע את כל השרטוטים והקבצים, ואתם פנויים לעבודה השוטפת
קבצים מוכנים ל-CNC
ייצוא מדויק לקובצי ייצור,
לפי שיטת העבודה הנהוגה אצלכם
תכנון מדויק
שרטוטים ברמה מקצועית גבוהה, מבוססי CABINET VISION,
מותאמים בדיוק לשיטת העבודה והסטנדרטים שלכם
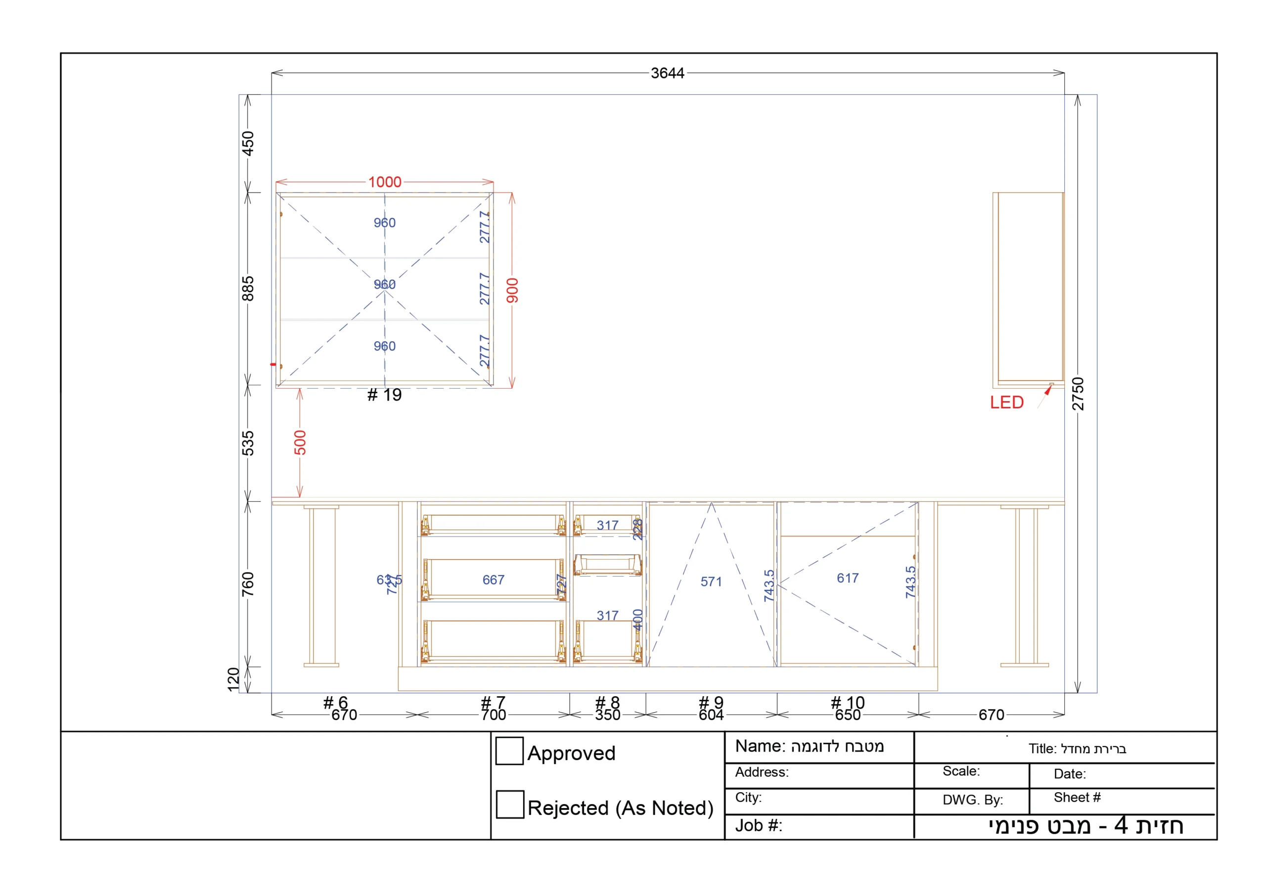
סט תוכניות לדוגמה – מטבח
כולל הדמיות, מבטים וגליונות עבודה מקצועיים לנגריה

איך זה עובד?
שלב ראשון:
מגדירים יחד את הרהיט, שיחה קצרה לתיאום מידות,
חיבורים וסגנון העבודה – כדי לדייק את התכנון עבורכם
שלב שני:
אני מבצע את כל השאר
תכנון מדויק ושרטוט מקצועי בהתאם למה שהגדרתם
שלב שלישי:
מקבלים קובץ מוכן לייצור קובץ CNC, מוכן להרצה –
תפור לפי שיטת העבודה שלכם
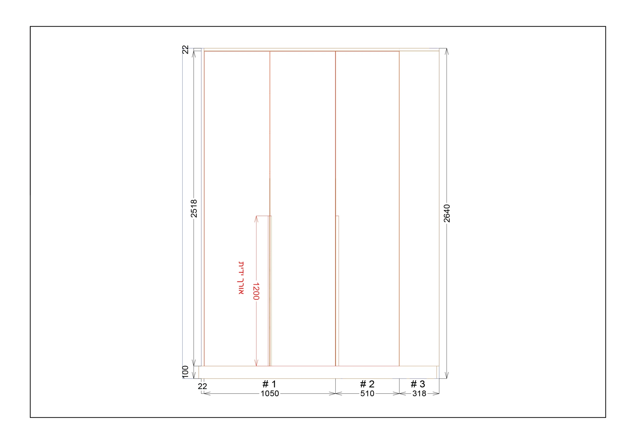
סט תוכניות לעיצוב ארון קיר ותוצאה סופית

דלתות עם חירוץ מעוגל
דלתות ייחודיות, מעוצבות לפי מידה – מתאימות גם לקירות משופעים ולפתרונות לא סטנדרטיים.

שמי דולב גלעד
נגר בעבר, ומומחה כיום לתכנון רהיטים לנגרים עם CNC.
אחרי שנים בנגריה, אני מכיר מקרוב את הלחץ, חוסר הזמן והצורך בתכנון מדויק שמתאים בדיוק לשיטת העבודה שלך.
את השירות "קו לנגר" הקמתי כדי לאפשר לך להתמקד בעבודה השוטפת, בלי לבזבז שעות על תוכנות ודיוקים.
אני מתחבר למחשב שלך, מתכנן בעזרת קבינט ויז'ן, ומעביר לך קובץ ייצור מדויק שמוכן לרדת ישר למכונה.
למה לבחור בקו לנגר
חיסכון בזמן ועומס
במקום להתעכב על שרטוטים, תוכל להתמקד בעבודה השוטפת ואני אדאג לתכנון.
תכנון מדויק לפי השיטה שלך
ניסיון מהשטח
תכנון לדוגמה חדר נוער
תכנון חדר נוער – כפי שבוצע בפועל

💬 השירות מתחיל בשיחה
כדי להבין איך אתה עובד, מה חשוב לך, ואיך אפשר לדייק את התכנון בדיוק לצרכים שלך
אשמח להכיר אותך!
השאר כאן פרטים ונקבע שיחה ראשונית שתניח את היסודות לעבודה משותפת.























